一、大兴首邑溪谷怎么样
性价比不错,适合年轻朋友和第一次买房的人,买一层送一层,实际得房后相当于每平米才一万三左右,现在大兴的均价基本在一万九。

二、首邑溪谷真实现状
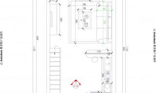
北京大兴首邑溪谷得立方空间是高层户型,从38到68平米的都有,层高4.8米,别看听起来小,实际很划算,上下两层,开发商给隔好的,都能做成两居室使用,而且价格上优势很大,总价120万起,这么算下来首付也就40万左右,比较划算。

性价比不错,适合年轻朋友和第一次买房的人,买一层送一层,实际得房后相当于每平米才一万三左右,现在大兴的均价基本在一万九。

北京大兴首邑溪谷得立方空间是高层户型,从38到68平米的都有,层高4.8米,别看听起来小,实际很划算,上下两层,开发商给隔好的,都能做成两居室使用,而且价格上优势很大,总价120万起,这么算下来首付也就40万左右,比较划算。

邮件:admin@zfsim.cn
工作时间:周一至周五,9:30-18:30,节假日休息
